
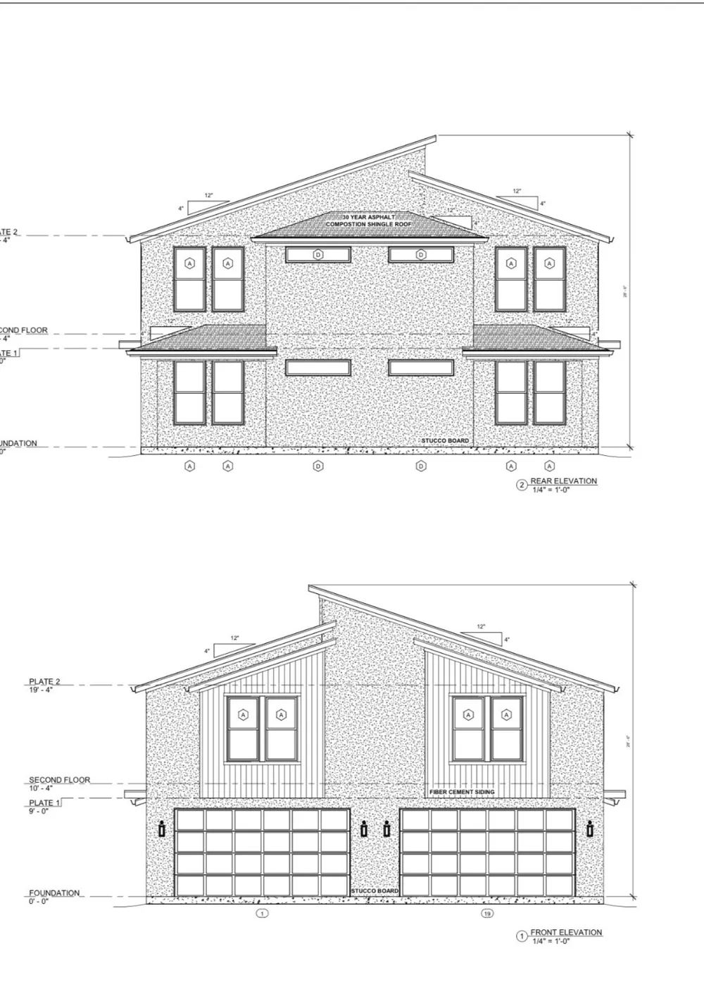
BUILD Your Dream HOUSE Gorgeous lot, ZONED DUPLEX!! 3 Spectacular buildable LOTS, CORNER 2402, 2406, and 2410 Conklin Street are sold separately, also BUILD-TO- SUIT. A perfect Canvas for your HGTV ideas! The LOTS are situated close to TRINITY GROVE and popular attractions. ALL lots offer easy access to Bishop Arts, and Downtown Dallas! Once Built, your new Townhome Tenants or Purchasers will be able to access a plethora of shopping, dining, and entertainment options. Perfect area for entertaining Family and Friends. Nature Enthusiasts will appreciate being close to The Dallas Zoo, The Perot Museum, and The Dallas Aquarium. The Klyde Warren Park offers open-air concerts, a kid's zone, food truck binging, recreation and relaxation. INVESTORS HURRY; these lots won't last long!! We have the design, and it's perfect for that LOT!
© 2023 North Texas Real Estate Information Systems, Inc. All rights reserved. Disclaimer: All information deemed reliable but not guaranteed and should be independently verified. All properties are subject to prior sale, change or withdrawal. Neither listing broker(s) nor Brenda Mancil shall be responsible for any typographical errors, misinformation, or misprints and shall be held totally harmless. The database information herein is provided from and copyrighted by the North Texas Real Estate Information Systems, Inc. NTREIS data may not be reproduced or redistributed and is only for people viewing this site. All information provided is deemed reliable but is not guaranteed and should be independently verified. The advertisements herein are merely indications to bid and are not offers to sell which may be accepted. All properties are subject to prior sale or withdrawal. All rights are reserved by copyright
Last Updated: . Source: NTREIS
Provided By
Listing Agent: Allena Sazmand (#0481808), Phone: (214) 705-1000
Listing Office: WILLIAM DAVIS REALTY (#WDR01)

Get an estimate on monthly payments on this property.
Note: The results shown are estimates only and do not include all factors. Speak with a licensed agent or loan provider for exact details. This tool is sourced from CloseHack.